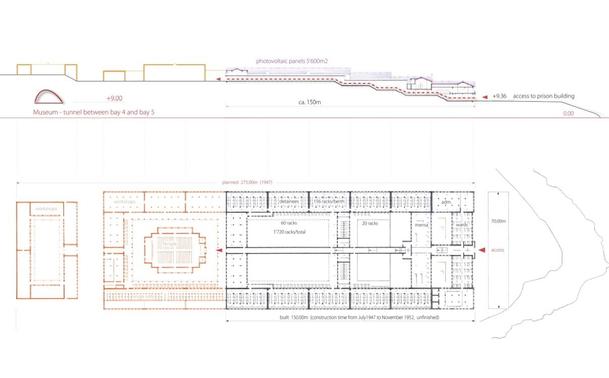
Gyaros Island of Exile
project "infrastructural" https://benhuser/2025/05/25/gyaros-island-of-exile/
#Alumil #Arxellence3 #IdeasCompetition
#culture #heritage #civilwar #museum #walkthrough #narrative#screenplay #script #ThePathIsTheGoal #YannisRitsos #TheOtherParthenon #Makronissos #Gyaros #Leros #communicatingvessels #Churchill #research #archeology #architecture #landscapedesign #urbanplanning #infrastructure #offshore #oilrig #reuse #pier #bridge #tunnel #UNESCO #WWF #MPA #KBA




















